46

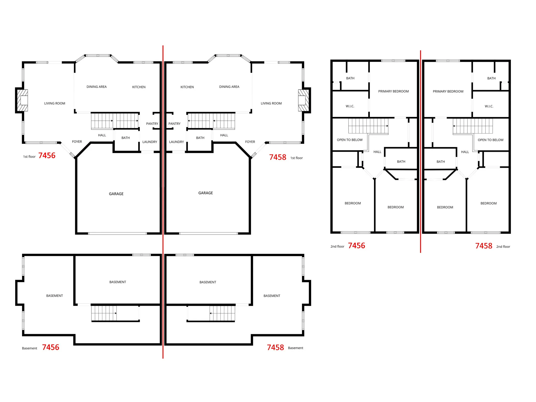
7456 SOUTHCREST CIR, Midvale, UT 84047

  • $875,000

Description

28 yr old, well kept duplexes. Nice, open floor plans. Vaulted ceilings, large decks, full landscaping. Primary bedroom has en suite full bath and large walk-in closet. Unfinished basement w/rough in bath, stud walls. Room for bath, family room, 1 bedroom or office. Great renters on month-to-month leases. Owner retiring, kept rents low to keep good, long term tenants. Utah Rental Housing Association’s 2025 rent estimate for a 3 bdrm/2+ bath townhome is $2208 (with average of 1687 sqftage.) Great location to freeways, ski resorts, Hillcrest High, Union Middle School, Union Park shopping. Located on a quiet cul-de-sac. Showing upon accepted offer. Do not disturb tenants. 2 adjacent duplexes also available (7490/7492 & 7494/7496 Southcrest Circle). No Seller Financing Available. Agent is part owner and related to the other seller.

  • Address: 7456 SOUTHCREST CIR
  • City: Midvale
  • State/county: UT
  • Zip/Postal Code: 84047
  • Country: US

Details

Updated on April 21, 2026 at 10:34 pm
  • Property ID 2150983
  • Price $875,000
  • Property Size 4654 sqft
  • Land Area 0.19 sqft
  • Bedrooms 6
  • Bathrooms 6
  • Garages 4.0
  • Garage Size x x
  • Year Built 1998
  • Property Type Duplex, Residential
  • Property Status Active

Additional details

  • Listing Terms Cash,Conventional,FHA,VA Loan
  • Roof Asphalt
  • Utilities Natural Gas Connected,Electricity Connected,Sewer Connected,Water Connected
  • Sewer Sewer: Connected
  • Heating Forced Air,Gas: Central
  • Flooring Carpet, Tile
  • County Salt Lake
  • Property Type Residential
  • Parking Parking: Uncovered
  • Elementary School Midvale
  • Middle School Union
  • High School Hillcrest
  • Architectural Style Side By Side

What's Nearby?

Please supply your API key Click Here

Similar Listings

Compare listings

Compare