7
  • Property Type
  • Industrial, Commercial Sale Commercial Lease
  • sqft
  • Area Size

138 N COUNTRY WAY, Washington, UT 84780

  • $5,640,000

Description

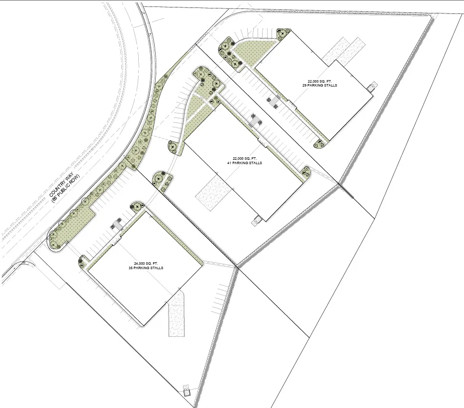
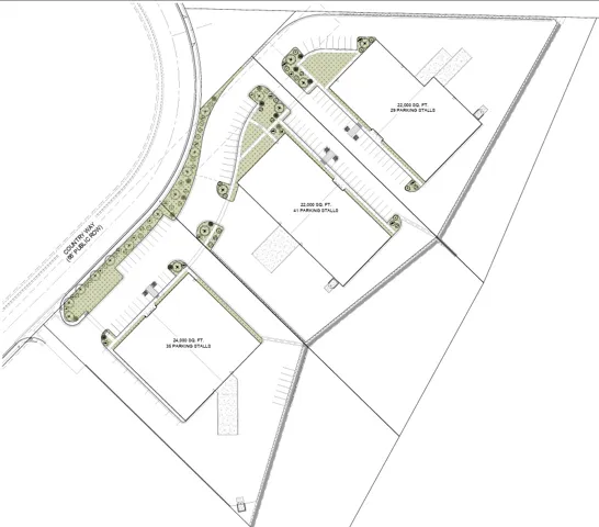
Institutional-quality industrial flex building | For Sale or Lease | Divisible to 12,000 SF Prime industrial flex opportunity available within the highly anticipated Sunrise Valley Industrial Park. The project will feature three buildings totaling 68,000 SF (24,000 SF, 22,000 SF, and 22,000 SF). The first phase, Building #36 (24,000 SF), is currently under construction with anticipated completion in August 2026. Designed to deliver modern, high-quality industrial space in one of Southern Utah’s fastest-growing markets, this building is constructed with premium materials, including Insulated Metal Panels (IMP) for superior thermal performance-helping maintain interior comfort and energy efficiency year-round in Washington County’s climate. The property also features high clear heights and a functional layout suitable for a wide range of industrial and flex users. The building is designed for maximum flexibility and can be demised into two 12,000 SF units, each with separate utilities, HVAC systems, and entrances-ideal for an owner-user to occupy a portion while generating income from the remaining space. Offered as a core & shell, allowing buyers or tenants to customize interior improvements to suit their operational needs. Pricing & Lease Options: Sale: $235/SF (full building only) Lease: $1.00/SF/month NNN (12,000 SF or 24,000 SF) Tenant improvements (office, kitchen, restrooms, etc.) can be built-to-suit and incorporated into lease terms This is a rare opportunity to acquire or lease a high-quality, institutional-grade industrial asset in a rapidly expanding market with strong long-term growth fundamentals.

  • Address: 138 N COUNTRY WAY
  • City: Washington
  • State/county: UT
  • Zip/Postal Code: 84780
  • Country: US

Details

Updated on April 17, 2026 at 2:14 pm
  • Property ID 2150368
  • Price $5,640,000
  • Land Area 3.02 sqft
  • Garage Size x x
  • Year Built 2026
  • Property Type Industrial, Commercial Sale Commercial Lease
  • Property Status Active

Additional details

  • Listing Terms Cash, Conventional, SBA
  • Utilities 480 V 3 Phase,Separate Meter: Elec.
  • Heating Electric
  • County Washington
  • Property Type Commercial Sale Commercial Lease

What's Nearby?

Please supply your API key Click Here

Similar Listings

Compare listings

Compare