25
  • Property Type
  • Condominium, Residential
  • 4
  • Bedrooms
  • 3
  • Bathrooms
  • 2.0
  • Garages
  • 2756 sqft
  • Area Size

6038 S VILLAGE 3 RD, Murray, UT 84121

  • $595,000

Description

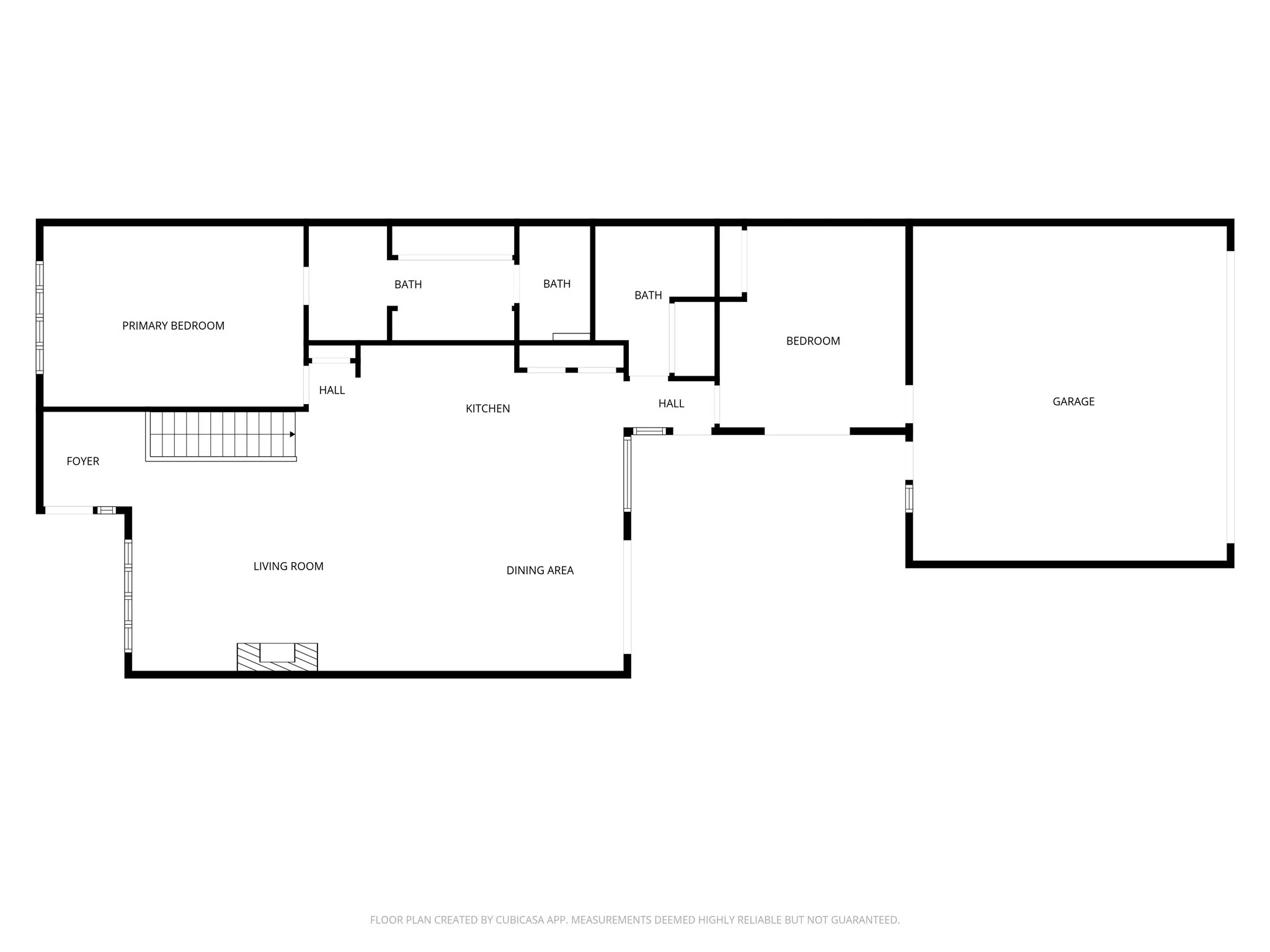
Rarely available rambler in the respected and desirable Village III Community! Enjoy spacious main-floor living with an efficiency apartment down for visitors or family. The kitchen was updated with solid wood cabinetry, under-cabinet lighting, corian countertops, and quality appliances. Thoughtfully finished with crown moldings, brand new carpeting on the main, and solar tube skylights. The large master suite has crown molding, tons of closet space, a built-in dressing table, and walk-in shower bath. The main floor office or guest room has easy-access to the garage or patio, the spacious hallway bath has solid-surface countertops and shower enclosure and a deep soaking tub! Nice floorplan down with a large family room, a tidy efficiency kitchen with bar seating, 2 large bedrooms, a spacious 3/4 bath, and a workshop/storage room. Replacement windows throughout, including sliding glass doors! A crazy amount of storage is built-in both up and down. There’s a private oversized tiled patio with recently replaced glide-out shade awnings and lots of room for flowers and a tomato garden. The private 2-car garage has a sink, workbench, and storage. Laundry on main floor! Newer roof, community RV parking is 1st come/1st serve (currently full), there’s a beautiful in-ground heated pool, the Clubhouse (with kitchen) can be reserved for gatherings, there’s a playground and lots of lush green space and mature trees. The monthly HOA covers snow removal, water/sewer/trash, and has on-site management hours M-F. Both Comcast & Utopia are available within the complex for internet/TV.

  • Address: 6038 S VILLAGE 3 RD
  • City: Murray
  • State/county: UT
  • Zip/Postal Code: 84121
  • Country: US

Details

Updated on April 23, 2026 at 10:30 pm
  • Property ID 2151490
  • Price $595,000
  • Property Size 2756 sqft
  • Land Area 0.01 sqft
  • Bedrooms 4
  • Rooms 15
  • Bathrooms 3
  • Garages 2.0
  • Garage Size x x
  • Year Built 1972
  • Property Type Condominium, Residential
  • Property Status Active Under Contract

Additional details

  • Listing Terms Cash, Conventional
  • Association Fee 460.0
  • Roof Asphalt
  • Utilities Natural Gas Connected,Electricity Connected,Sewer Connected,Sewer: Public,Water Connected
  • Sewer Sewer: Connected,Sewer: Public
  • Cooling Central Air
  • Heating Forced Air,Gas: Central
  • Flooring Carpet, Laminate, Tile
  • County Salt Lake
  • Property Type Residential
  • Pool Fenced,Heated,In Ground
  • Parking Rv Parking
  • Elementary School Woodstock
  • Middle School Bonneville
  • High School Cottonwood
  • Community Features Clubhouse
  • Architectural Style Rambler/Ranch

What's Nearby?

Please supply your API key Click Here

Similar Listings

Compare listings

Compare