LOT 60 LEGACY RANCH AT MONTE C , Avon, UT 84328

  • $1,450,000

Description

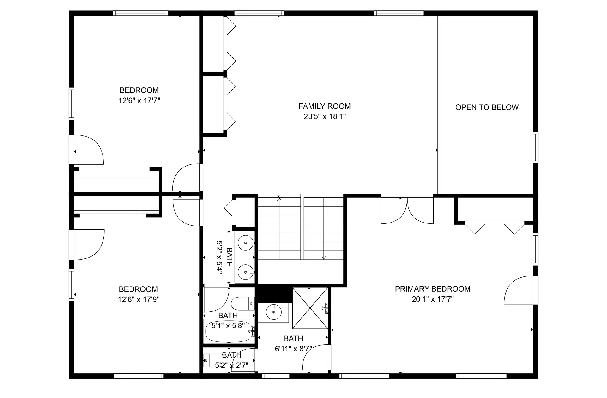
Welcome to Aspen Rise Retreat -Where privacy, peace, and adventure meet. Perched atop 118 private acres in stunning Avon, Utah, Aspen Rise Retreat is the ultimate mountain escape. Surrounded by groves of quaking aspens and endless sky, this over 4,000 sq. ft. cabin offers space to gather, unwind, and reconnect with nature. With 7 spacious bedrooms, 4 bathrooms, a large open kitchen, cozy living room, full mudroom and pantry, 2nd floor loft space, vaulted second floor ceilings, and a huge storage area/ gym with 30′ ceilings for all your toys and gear-this cabin was built for hosting family and friends, or simply escaping the noise of everyday life. Positioned along the scenic route to Monte Cristo and backing up to the Cinnamon Creek Recreational Area, the opportunities for hiking, wildlife watching, snowmobiling, and solitude are endless. Located conveniently between Cache Valley and Huntsville, this is your perfect four-season getaway. Whether you’re looking for a private family compound, a corporate retreat, or a legacy property-Aspen Rise Retreat offers the kind of tranquility and adventure that’s getting harder to find. Square footage figures are provided as a courtesy estimate only and were obtained from floorplan scans and blueprints . Buyer is advised to obtain an independent measurement.

  • Address: LOT 60 LEGACY RANCH AT MONTE C
  • State/county: UT
  • Zip/Postal Code: 84328
  • Country: US

Details

Updated on March 17, 2026 at 5:53 pm
  • Property ID 2106768
  • Price $1,450,000
  • Property Size 4367 sqft
  • Land Area 118.7 sqft
  • Bedrooms 7
  • Rooms 18
  • Bathrooms 5
  • Garage Size x x
  • Year Built 2007
  • Property Type Recreational, Residential
  • Property Status Active

Additional details

  • Listing Terms Cash,Conventional,VA Loan
  • Roof Metal, Pitched
  • Utilities Natural Gas Connected,Electricity Available,Sewer: Septic Tank,Water Connected
  • Sewer Septic Tank
  • Heating Gas: Central,Propane,Space Heater,Wood
  • Flooring Carpet, Hardwood, Tile
  • County Cache
  • Property Type Residential
  • Parking Parking: Uncovered,Rv Parking
  • Elementary School None/Other
  • Middle School None/Other
  • High School None/Other
  • Architectural Style Cabin

What's Nearby?

Please supply your API key Click Here

Similar Listings

Compare listings

Compare