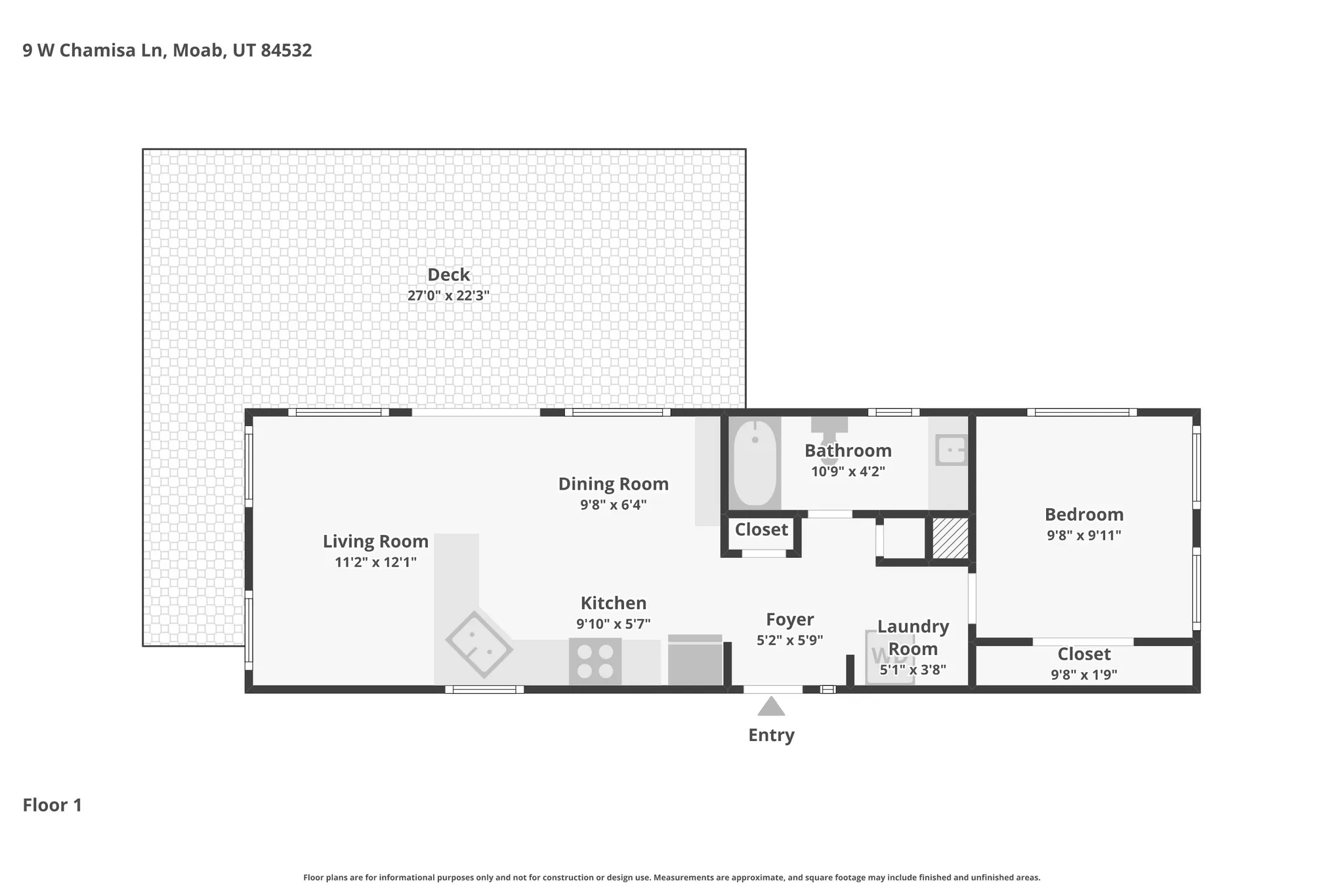
9 CHAMISA LN, Castle Valley, UT 84532

  • $545,000

Description

EQUESTRIAN’S DREAM Surrounded by the towering red monuments of Castle Valley, this gem is perfect for your homestead venture. Easy access from Castle Valley Drive near the town library, town hall and fire department, this 5 acre parcel is home to nearly 3 acres of Buffalo Brand Equestrian Mix pasture with two to three separate pastures based on your grazing needs, fenced and ready for horses. Offering a high producing well with a 3 horse power pump supplying 55 gallons per minute of amazing water. The full parcel is fully fenced, 3 sides with wildlife fencing, and has over 1,000 linear feet, 40 feet deep, of mature privacy tree line with an engineered irrigation system for the Ponderosa Pine, Juniper, Red Cedar, Ash, Locust, Big Sage and other trees and shrubs. The northwest side of the property hosts 5 large Freemont Cottonwoods. The property is well positioned with no historic sheet flooding or drainage on site. With a 600 square foot tiny home in place, this property will allow you to stay in comfort and style while you build the home of your dreams – or enjoy it as it is. The home has fiber optic cable, a large trex deck, mature Sycamore and Fruitless Mulberry trees, a beautiful lawn and meadow grasses. Lush green farmland surrounded by 360 degree, long valley views- your homestead awaits! Square footage figures are provided as a courtesy estimate only and were obtained from images. Buyer is advised to obtain an independent measurement.

  • Address: 9 CHAMISA LN
  • City: Castle Valley
  • State/county: UT
  • Zip/Postal Code: 84532
  • Area: CASTLE VALLEY RIVER RANCHOS
  • Country: US

Details

Updated on April 8, 2026 at 10:33 pm
  • Property ID 2099349
  • Price $545,000
  • Property Size 600 sqft
  • Land Area 5.02 sqft
  • Bedroom 1
  • Rooms 4
  • Bathroom 1
  • Garage Size x x
  • Year Built 1997
  • Property Type Single Family Residence, Residential
  • Property Status Active

Additional details

  • Listing Terms Cash
  • Roof Asphalt, Pitched
  • Utilities Electricity Connected,Sewer Connected,Sewer: Septic Tank,Water Connected
  • Sewer Sewer: Connected,Septic Tank
  • Cooling Evaporative Cooling
  • Heating Forced Air,Gas: Central,Propane
  • Flooring Linoleum
  • County Grand
  • Property Type Residential
  • Parking Parking: Uncovered,Rv Parking
  • Elementary School Helen M. Knight
  • High School Grand County
  • Architectural Style Manufactured

What's Nearby?

Please supply your API key Click Here

Similar Listings

Compare listings

Compare