1
  • Property Type
  • Industrial, Commercial Lease
  • sqft
  • Area Size

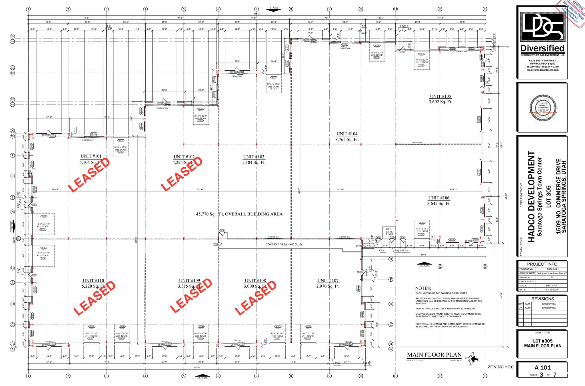
1509 N COMMERCE DR, Saratoga Springs, UT 84045

Description

Brand-new industrial/flex building in the fast-growing Saratoga Springs market. Approximately 24,166 SF available for lease-ideal for warehouse, light manufacturing, or flex use. Half of the building is already leased; don’t miss the opportunity to secure your space in this high-demand location. Scheduled for completion in August 2025, the space features modern construction, 20′ clear height, 26′ peak height, ample power, and flexible layout options. Convenient access to major transportation corridors and a growing labor pool make this an ideal location for expanding operations. Reach out today to customize the space to your needs before buildout is complete.

  • Address: 1509 N COMMERCE DR
  • City: Saratoga Springs
  • State/county: UT
  • Zip/Postal Code: 84045
  • Country: US

Details

Updated on December 15, 2025 at 8:49 pm
  • Property ID 2092900
  • Land Area 7.76 sqft
  • Garage Size x x
  • Year Built 2025
  • Property Type Industrial, Commercial Lease
  • Property Status Active

Additional details

  • County Utah
  • Property Type Commercial Lease

What's Nearby?

Please supply your API key Click Here

Similar Listings

Compare listings

Compare